В Краснодаре представили проекты зеленых зон, претендующих на реконструкцию в 2018 году

Краснодарский край
  •  © Фото пресс-службы администрации Краснодара
    © Фото пресс-службы администрации Краснодара
  •  © Фото пресс-службы администрации Краснодара
    © Фото пресс-службы администрации Краснодара
  •  © Фото пресс-службы администрации Краснодара
    © Фото пресс-службы администрации Краснодара

В Краснодаре несколько зеленых зон претендуют на то, чтобы войти в федеральный проект «Формирование комфортной городской среды»

«Подготовку к реализации федерального проекта на 2018 год необходимо вести параллельно с выполнением работ этого года. Ведь уже известно, что финансирование сохранится на том же уровне. В городе много зеленых зон, которые необходимо приводить в порядок, делать комфортными для горожан. Важно также, чтобы эти территории были в разных округах и микрорайонах — так, чтобы мы обеспечивали сбалансированное развитие Краснодара и в части благоустройства», — цитирует мэра Краснодара Евгения Первышова пресс-служба администрации города.

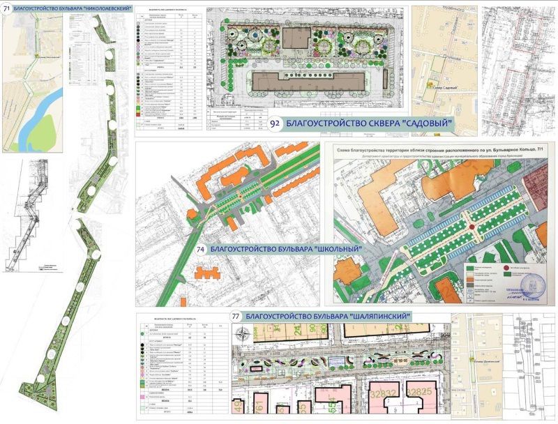
Главный архитектор Краснодара Игорь Мазурок на совещании представил эскизы проектов благоустройства зеленых зон: бульвар Школьный и сквер «Новорождественский» в Юбилейном микрорайоне, бульвар Шаляпинский в Музыкальном микрорайоне, городской сад «Старая Кубань» и бульвар Николаевский в микрорайоне Гидростроителей, сквер «Садовый» в центральной части Краснодара. Проекты прорабатываются для обсуждения с жителями и архитекторами, чтобы принять участие в отборе в рамках приоритетного федерального проекта.

Первышов поручил продолжить подготовку проектов благоустройства территорий, освобождающихся после сноса аварийных домов в центре города.

«Мы прекратили практику, когда такие территории выставлялись на торги для точечного строительства. Все земельные участки, которые мы освобождаем от ветхого аварийного жилья, используем для развития социальной инфраструктуры и создания зон отдыха. Нам нужны удобные для краснодарцев пешеходные маршруты и пешеходные улицы, которые были бы связаны между собой. В рамках приоритетного проекта мы также можем создавать элементы этой системы», — сказал Первышов.

В ходе рабочего совещания обсудили также работу по отбору для включения в программу внутридворовых территорий.  

Местами ливни и сильный ветер
Вчера, 08:33
Местами ливни и сильный ветер
Прогноз погоды в Краснодаре и крае в начале недели
От всего Атомного сердца
17 апреля, 17:17 Реклама
От всего Атомного сердца
«Пятёрочка» и Atomic Heart разыгрывают автомобиль, технику и эксклюзивные аксессуары
Незаконные постройки, мертвые реки и ливневки из 1960-х
16 апреля, 16:30
Незаконные постройки, мертвые реки и ливневки из 1960-х
Почему Дагестан оказался не готов к историческому наводнению